Leírás
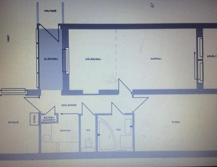
KIADÓ a 8. kerület, Győrffy István utcában egy 70 nm-es nappali+ 2 szobás, erkélyes lakás a 3. emeleten (lift nincs).
Bútorozott és gépesített, az erkély fedett 8 nm-es.
A lakás nagyon világos, két irányból kelet-nyugat fekvésű, így egész nap napos, az utca csendes.
Bérleti díj: 270.000 Ft
Közös költség: 17.000 Ft
Kisállat megbeszélés szerint hozható.
Két havi kaucióval és tárgyhavi kaucióval költözhető.
INFO: +36306706067
Helyszín
Adatok
- Kerület: 8. kerület
-
Utca:
győrffy istván utca
-
Méret:
70 m²
- Elrendezés:
- Emelet:
- Állapot:
-
Lift:
Nincs
-
Erkély:
Nincs
-
Légkondicionáló:
Van
-
Bútorozott:
Igen
-
Kisállat hozható:
Igen
-
Mikortól költözhető:
azonnal
-
Bérleti díj:
270 eFt
- Kaució:
-
Közös költség:
17000 Ft